Palazzina in vendita

Prato, Via Frascati - Centro
€ 400.000
12 locali 12 locali
350 Mq 350 Mq
3 bagni 3 bagni

Palazzina in vendita

Prato, Via Frascati - Centro

Descrizione annuncio

CENTRO STORICO - Via Frascati

NOSTRA ESCLUSIVA: Nel cuore del Centro Storico proponiamo in vendita una palazzina di circa 300 mq dal grande potenziale, da ristrutturare, attualmente suddivisa in due ampi appartamenti entrambi dotati di terrazza, di cui una abitabile, oltre a due fondi al piano terra con doppio accesso sia dal vano scala condominiale che direttamente dalla strada.

Questa proprietà rappresenta una soluzione unica e versatile, ideale sia come investimento per la creazione di più unità abitative, sia come residenza per un grande nucleo familiare che desideri vivere insieme, mantenendo comunque privacy e indipendenza.

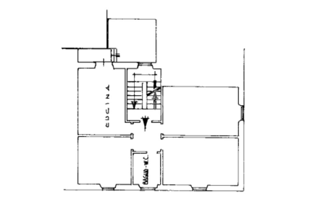
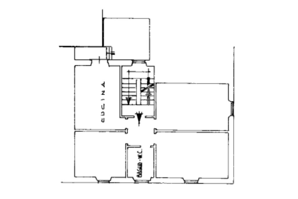
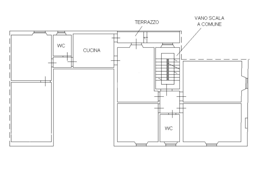
All’ingresso si viene accolti da un ampio vano scala che conduce ai diversi livelli della palazzina e ai fondi del piano terreno.

Distribuzione attuale degli spazi:

- Piano terra (circa 80 mq) - due fondi commmerciali con accesso sia dal vano scala condominiale che direttamente dalla strada, ideali come magazzino, laboratorio o rimessa


- Primo piano (circa 85 mq)appartamento di quattro vani composto da disimpegno, cucina con terrazzo abitabile, soggiorno luminoso, due camere da letto e bagno finestrato.


- Secondo piano (circa 135 mq) – spazioso appartamento di sei vani con ampio disimpegno che separa la zona giorno dalla zona notte. La zona giorno ospita un grande soggiorno con accesso alla terrazza, una cucina abitabile e due vani polifunzionali perfetti come studio, sala hobby o ulteriori camere da letto. La zona notte comprende due camere da letto e un bagno finestrato.

Completa la proprietà una soffitta non praticabile, ottima come spazio di deposito.

Posizione esclusiva, nel cuore del Centro Storico, a pochi passi da tutti i principali servizi, negozi e punti di interesse.
Una soluzione ricca di potenzialità, perfetta per chi desidera personalizzare gli spazi e creare una dimora di charme o un progetto immobiliare su misura nel centro della città.

Fissa un appuntamento per vedere l'immobile chiamando lo 0574.1858078 oppure mandando un messaggio whatsapp al 351.7029021

Mostra tutto

Nelle vicinanze

Trasporto pubblico Trasporto pubblico
stazione di Prato Centrale
stazione di Prato Centrale
1,0 Km
Pomeria 80
Pomeria 80
160 m
Ceppo Vecchio 2
Ceppo Vecchio 2
190 m
stazione di Prato Porta al Serraglio
stazione di Prato Porta al Serraglio
860 m
Prato Borgonuovo
Prato Borgonuovo
2,4 Km
Ricariche auto elettriche Ricariche auto elettriche
Estra Martini
460 m
Estra Mercatale
510 m
Estra Parcheggio Piazza dei Macelli
560 m
Parcheggio Serraglio
940 m
Estra Galilei
1,0 Km
Scuole Scuole
Convitto nazionale statale Francesco Cicognini
390 m
Istituto Comprensivo "Mazzoni"
440 m
Scuole
550 m
Polo Universitario Città di Prato
960 m
PEDIBUS - Percorso 1 Procioni - Scuola De André
1,0 Km
Farmacia Farmacia
Guasti
450 m
Farmacia Comunale 3
490 m
Farmacia Carbone
590 m
Farmacia Comunale 12
600 m
Farmacia dell'ospedale
610 m
Ospedali Ospedali
Studi medici di famiglia
1,9 Km
Studi medici Pediatri
1,9 Km
Supermercati Supermercati
Supermercati
470 m
Coop.fi
520 m
NaturaSì
530 m
Pam
760 m
Penny Market
850 m
Negozi Negozi
United Colors of Benetton
320 m
Fratelli Guarducci
360 m
Panificio
450 m
Jack & Jones
480 m
Iana
480 m
Bar Bar
Bar
210 m
Caffè 21
260 m
Opificio JM
310 m
Giardino Buonamici
360 m
Viva
450 m
Ristoranti Ristoranti
Ragiona
60 m
porto della luna
160 m
I Francescaioli
260 m
Cigarba
280 m
La Veranda
300 m
Mostra tutto

Caratteristiche

Rif.:
61127593
Piano:
Su più livelli di 3
Totale piani:
3
Terrazzi:
2
Camere da letto:
6
Arredamento:
Assente
Mostra tutto
Prezzo Prezzo
€ 400.000
Rata mutuo Rata mutuo
€ 1.885 / mese
Spese annue Spese annue
€ 0
Proponi il tuo prezzoProponi il tuo prezzo

Classe Energetica

G
G
G
G
G
G
G
G
G
EP globale non rinnovabile:
245.57 kW h/m² anno
EP globale rinnovabile:
11.05 kW h/m² anno
EP invernale del fabbricato:
EP estiva del fabbricato:
Anno di costruzione:
1946
Riscaldamento:
Autonomo
Tipo impianto:
A stufa
Tipo alimentazione:
Metano

Ti interessa visionare l'immobile?

Fissa un appuntamento  Fissa un appuntamento

Richiedi informazioni

Clicca su Leggi per aprire l'informativa
* Questi campi sono obbligatori

Calcola il tuo mutuo

Semplice e senza impegno
Anticipo

( % )
Mutuo

( % )

pochi semplici passi

inserisci i tuoi dati
Questionario completato
Grazie per aver richiesto un appuntamento senza impegno con un nostro Consulente del Credito e Assicurativo.

Hai inserito correttamente tutti i dati necessari e a breve riceverai una e-mail con un link da convalidare per inviare i tuoi dati.
Affiliato
Prato Centro Sas
P.zza San Francesco, 6 59100 Prato (PO)

Il nostro staff


  • Giuseppe Cassarà
    Affiliato

  • Lorenzo Lombardi
    Affiliato
P.zza San Francesco, 6 59100 Prato (PO)
Zona: Prato Centro
Mostra su mappa
Orari: lunedì 09–13, 15–20 martedì 09–13, 15–20 mercoledì 09–13, 15–20 giovedì 09–13, 15–20 venerdì 09–13, 15–20 sabato 09–13, 15–18 domenica aperti su appuntamento
Affiliato
Prato Centro Sas
P.zza San Francesco, 6 59100 Prato (PO)

2026 Tecnocasa Franchising S.p.A. - P. IVA 08365160152 - Via Monte Bianco 60/A 20089 Rozzano (MI). Ogni agenzia ha un proprio titolare ed è autonoma. Privacy policy | Policy utilizzo | Cookie policy