Casa semindipendente in vendita

Prato, Via Rosa Giorgi - Centro
€ 389.000
Prezzo aggiornato
4 locali 4 locali
130 Mq 130 Mq
2 bagni 2 bagni

Casa semindipendente in vendita

Prato, Via Rosa Giorgi - Centro

Descrizione annuncio

CENTRO STORICO – Via Rosa Giorgi

NOSTRA ESCLUSIVA: Proponiamo in vendita una splendida casa semi-indipendente, parte di un complesso di recente costruzione, situata in una strada senza sfondo nel centro di Prato: la combinazione perfetta tra tranquillità e comodità, a due passi dai principali servizi, negozi e punti di interesse della città.

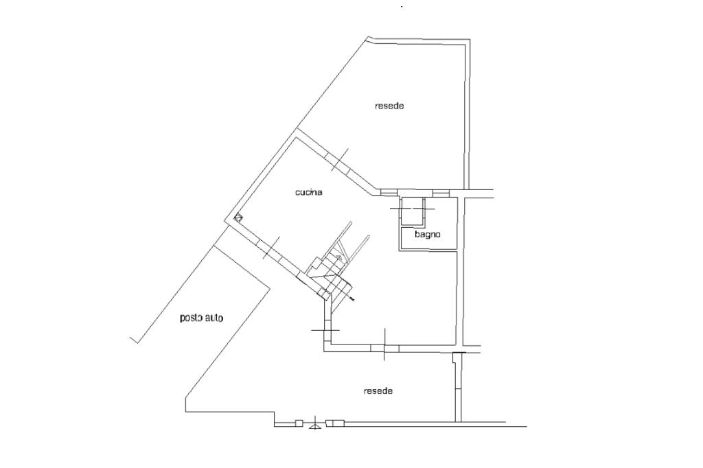
L’immobile, come nuovo, si sviluppa su due livelli e offre quattro vani spaziosi, curati nei dettagli e rifiniti con materiali di pregio. All’ingresso ci accoglie un ampio soggiorno luminoso, con portafinestra che apre sul resede frontale abitabile, dove troviamo anche due comodi posti auto privati con passo carrabile.

Completa il piano terra un bagno moderno con doccia, un comodo ripostiglio e una cucina abitabile che si affaccia sul giardino sul retro: un vero e proprio angolo di oasi privata, perfetto per pranzi e cene in compagnia.

Al primo piano, la zona notte propone due camere matrimoniali, entrambe con terrazzo privato, e un bagno finestrato con vasca, tutti ambienti caratterizzati da luminosità e finiture di pregio.

Un’opportunità unica per chi desidera vivere in centro a Prato, in una casa elegante, riservata e pronta da abitare.

Fissa un appuntamento per vedere l'immobile chiamando lo 0574.1858078 oppure mandando un messaggio whatsapp al 351.7029021.

Mostra tutto

Nelle vicinanze

Trasporto pubblico Trasporto pubblico
stazione di Prato Centrale
stazione di Prato Centrale
1,1 Km
Pomeria 95
Pomeria 95
150 m
Arcangeli 17
Arcangeli 17
240 m
stazione di Prato Porta al Serraglio
stazione di Prato Porta al Serraglio
880 m
Prato Borgonuovo
Prato Borgonuovo
2,3 Km
Ricariche auto elettriche Ricariche auto elettriche
Estra Parcheggio Piazza dei Macelli
450 m
Estra Martini
570 m
Estra Mercatale
590 m
Parcheggio Serraglio
970 m
Estra Sede
1,0 Km
Scuole Scuole
Convitto nazionale statale Francesco Cicognini
310 m
Istituto Comprensivo "Mazzoni"
540 m
Scuole
590 m
Polo Universitario Città di Prato
980 m
Liceo Scientifico/Linguistico Carlo Livi
1,0 Km
Farmacia Farmacia
Guasti
470 m
Farmacia Comunale 12
490 m
Farmacia dell'ospedale
510 m
Farmacia Comunale 3
590 m
Farmacia Carbone
710 m
Ospedali Ospedali
Studi medici di famiglia
1,9 Km
Studi medici Pediatri
1,9 Km
Ospedale Santo Stefano
3,0 Km
Supermercati Supermercati
Supermercati
580 m
NaturaSì
580 m
Coop.fi
630 m
Penny Market
760 m
Pam
820 m
Negozi Negozi
United Colors of Benetton
430 m
Fratelli Guarducci
430 m
Panificio
450 m
Iana
500 m
Jack & Jones
530 m
Bar Bar
Bar
290 m
Caffè 21
360 m
Giardino Buonamici
380 m
Opificio JM
420 m
Le Barrique Wine Bar
510 m
Ristoranti Ristoranti
porto della luna
120 m
Ragiona
130 m
Raja
220 m
I Francescaioli
270 m
Decanter
340 m
Mostra tutto

Caratteristiche

Rif.:
61167977
Piano:
Su più livelli di 3
Totale piani:
3
Posti auto:
2
Balconi:
2
Camere da letto:
2
Mostra tutto
Prezzo Prezzo
€ 389.000
Rata mutuo Rata mutuo
€ 1.816 / mese
Spese annue Spese annue
€ 360
Proponi il tuo prezzoProponi il tuo prezzo

Classe Energetica

B
B
B
B
B
B
B
B
B
EP globale non rinnovabile:
50.66 kW h/m² anno
EP globale rinnovabile:
0.21 kW h/m² anno
EP invernale del fabbricato:
EP estiva del fabbricato:
Anno di costruzione:
2018
Riscaldamento:
Autonomo
Tipo impianto:
A pavimento
Tipo alimentazione:
Metano

Prezzo ridotto di €1 (3%%)

Ti interessa visionare l'immobile?

Fissa un appuntamento  Fissa un appuntamento

Richiedi informazioni

Clicca su Leggi per aprire l'informativa
* Questi campi sono obbligatori

Calcola il tuo mutuo

Semplice e senza impegno
Anticipo

( % )
Mutuo

( % )

pochi semplici passi

inserisci i tuoi dati
Questionario completato
Grazie per aver richiesto un appuntamento senza impegno con un nostro Consulente del Credito e Assicurativo.

Hai inserito correttamente tutti i dati necessari e a breve riceverai una e-mail con un link da convalidare per inviare i tuoi dati.
Affiliato
Prato Centro Sas
P.zza San Francesco, 6 59100 Prato (PO)

Il nostro staff


  • Giuseppe Cassarà
    Affiliato

  • Lorenzo Lombardi
    Affiliato

  • Giada Pisani
    Collaboratrice
P.zza San Francesco, 6 59100 Prato (PO)
Zona: Prato Centro
Mostra su mappa
Orari: lunedì 09–13, 15–20 martedì 09–13, 15–20 mercoledì 09–13, 15–20 giovedì 09–13, 15–20 venerdì 09–13, 15–20 sabato 09–13
Affiliato
Prato Centro Sas
P.zza San Francesco, 6 59100 Prato (PO)

2026 Tecnocasa Franchising S.p.A. - P. IVA 08365160152 - Via Monte Bianco 60/A 20089 Rozzano (MI). Ogni agenzia ha un proprio titolare ed è autonoma. Privacy policy | Policy utilizzo | Cookie policy